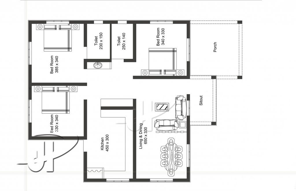
1044 Square Feet 3 Bedroom Contemporary Model Home Design and Plan
Total Area : 1044 Square Feet
Budget : 14 Lacks
Porch
Sit Out
Living Cum Dining
3 Bedroom
1 Attached Bathroom
1 Common Bathroom
Kitchen
contact the designer.
Perfect Design
Riyadh – K.S.A
Mail :perfecthomedesignz@gmail.com
In this entry the pattern and the finish play with each other
The floor of the mosaic brings the charm and depth of the vintage to the whole space. By combining glove pendant and decorative wallpaper eclecticism is born in that area. Like a painter’s handicraft blue and pink Under a whim with a suggestion to the river flowing through the forest. The mirror panel is a wonderful way to make a small room bigger. As you you can choose a section mirror made up of many small mirrors of different shapes. You can choose a plain mirror and attach a forehead to fit the interior of the room. This complementary ottoman has an independent chandelier in front of the mirror. .

Courtesy : keralahomedesignz.com



