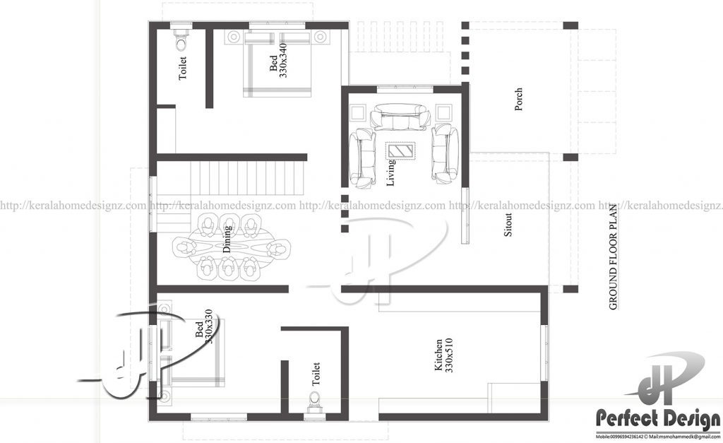
850 Square Feet 2 Bedroom Contemporary Modern Home Design and Plan
Total Area : 850 Square Feet
Porch
Sit Out
Living
Dining
Stair
2 bedroom
2 Attached Bathroom
Kitchen
If you feel it with countertops or options, please try concentrating on choosing the countertop first. You are the stable of your kitchen and you can be a good chunk of your budget. Then you can get it right. Your budget and the way you use your kitchen drop things. In addition, materials have few color and pattern options, and there are no restrictions on options. Countertops are also installed before, so if you need to decide them first, you definitely do not need to exactly match your backslash color or pattern. It also has a lot of movement counter material. Since it is a simple and good choice among these, take a central stage and try not to fight for your attention. When you want to go boldly at the countertop, please bring samples of the material of your choice when shopping tile. You can limit your options to those that work with yours. Even if it is just a few examples, if you are struggling to find the correct back splash to work with a professional to help you pin down what you choose.




