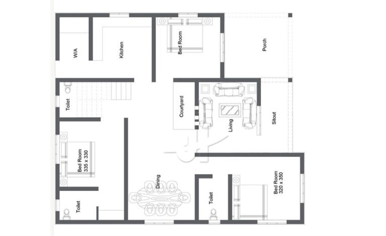
1160 Square Feet 3 Bedroom Single Floor Budget Home Design and Plan
Total Area : 1160 Square Feet
Budget : 15 Lacks
Porch
Sit Out
Living
Dining
3 Bedroom
2 Attached Bathroom
1 Common Bathroom
Kitchen
Work Area
They can be compact, medium sized or spacious. Regardless of the size of your bedroom, the layout must be laid out so that the space is ventilated, organized and furnished with proper sized furniture. The basic plan of the bedroom is done with the surrounding space, centering on the bed, side table, wardrobe position. Here are all the important bedroom furniture that will help you create an efficient layout that is best suited to your space shape and size. Most of the way to split two single beds is to insert a bedside shared table in between. The distance between two single beds must be at least 3 feet. The height of the bedside table should be the same as the height of the bedside table. Some homeowners, the length of the dressing table must be at least 2 feet so that there is enough space to make-up, the size of the height is 32-36 inches and a depth of at least 16 You can turn it into inches or make your hair. Also, make sure there is nothing in front of the dresser, move it slightly back and see the top. The minimum clearance on the other side of the bed is convenient to be about 24 inches The width of the hinged wardrobe panel is 18-24 inches. The depth of the wardrobe must be at least 24 inches, and its height must match the level of the 7 ‘door door lint. Even if the wardrobe is open, the full size floor will touch the ceiling of the wardrobe according to the panel size. Therefore, there is space to circulate even if the wardrobe is open. For compact or small bedrooms, choose a sliding wardrobe. It is suitable for space saving. The minimum width of the surroundings should be at least 3 feet. If the space is too narrow it will be too narrow.




