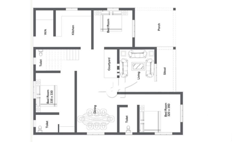
1157 Square Feet 3 Bedroom Single Floor Budget Home Design and Plan
Total Area : 1157 Square Feet
Budget : 15 Lacks
Porch
Sit Out
Living
Dining
3 Bedroom
2 Attached Bathroom
1 Common Bathroom
Kitchen
Work Area
Stair
When I started working with a client, one of my favorite things is when there are more beige and gray people. In other words, almost all neutral colors are necessary as a general background or canvas that determines the direction of design. I can generally see that the client focuses on other neutral neutrals. Selecting neutral does not mean that you do not use other colors in the space. It means starting with neutral tone. The taste of beige and gray people tends to exceed the trend, but one is often more trend than the other. However, it is important to decide how to tilt even if you do not want to use a lot of gray or beige, regardless of which one of the most popular beige and gray always tests the time. Beige and gray are nice with natural materials such as wood. But your finishing needs to follow certain directions. Some may not agree with me, but unless there is blur between them, using Veggies and gray together will not work. In this kitchen, the color of the counter and the wall shows that this person’s preference is gray. In the case of red beige, I often like brown, tough and warm colors. Even if you want to make the space all wood, you need to select backslash, counters and fixtures. Those rubbed with oil and those made of copper work particularly well in beige spaces. Limestone with cream colored limestone and brown and golden glow will work as well. Stones are very different. There are lots of warm gray there to keep your space cozy. When working in gray, it is important to choose one with the same undertone. You can choose cloth, paint and so on. The color tone is thin, the color is thin, the color tone is the same.




