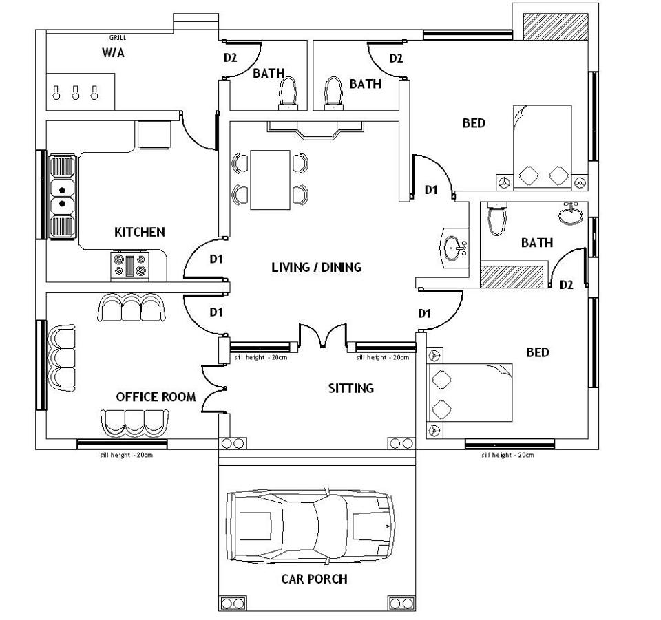
1121 Square Feet 2 Bedroom Single Floor Modern home Design and Plan
Total Area : 1121 Square Feet
Porch
Sit Out
Living
Dining
2 Bedroom
2 Attached Bathroom
1 Common Bathroom
Kitchen
Work Area
The visually attractive wall gate provides protection and gives a glimpse of the taste and sets the tone of the interior. We also need to pay attention to the walls of the outward facing walls, as most of us cherish the decoration of the house, the garden and the entrance. Please read the information on the various materials preferred for the door of the wall. The charm of wood can not be denied. Wood is strong and durable on the outer wall, but it also has aesthetic value. It is welcomed and old. The weathered wooden gate is full of letters. You can also consider dyeing wood for a fresh look. Here the wall gates made of thin plates of wood complement the walls of the red brick walls and the walls of the desert sand shade and give the house a warm and rustic appearance. The gate can be designed in various styles. Here, the architect softened the public of the house on the gate and the cheek of the cheek on it. As well as being an important element of security, they are functions. Structurally, it is a strong metal and can withstand the tough weather. It is strong, but like this image, you can give the dose of design with laser cutting.Steel is rustproof material with unique gloss. In the design of this wall grill, the Stark effect of a narrow steel panel is balanced with the wood, and a warm and warm wall is added to the door of the composite wall. It is a hard metal known for that, can withstand the harsh weather conditions, can withstand beyond generations. You can paint wrought iron gates to avoid it and make it fresh look. There are various wrought iron compound wall grill designs, but it may not be the best way to protect privacy from going out. In this way, the iron gate can do grid-like work firmly. This iron gate blocks the view that crosses it and keeps the interior hidden.





