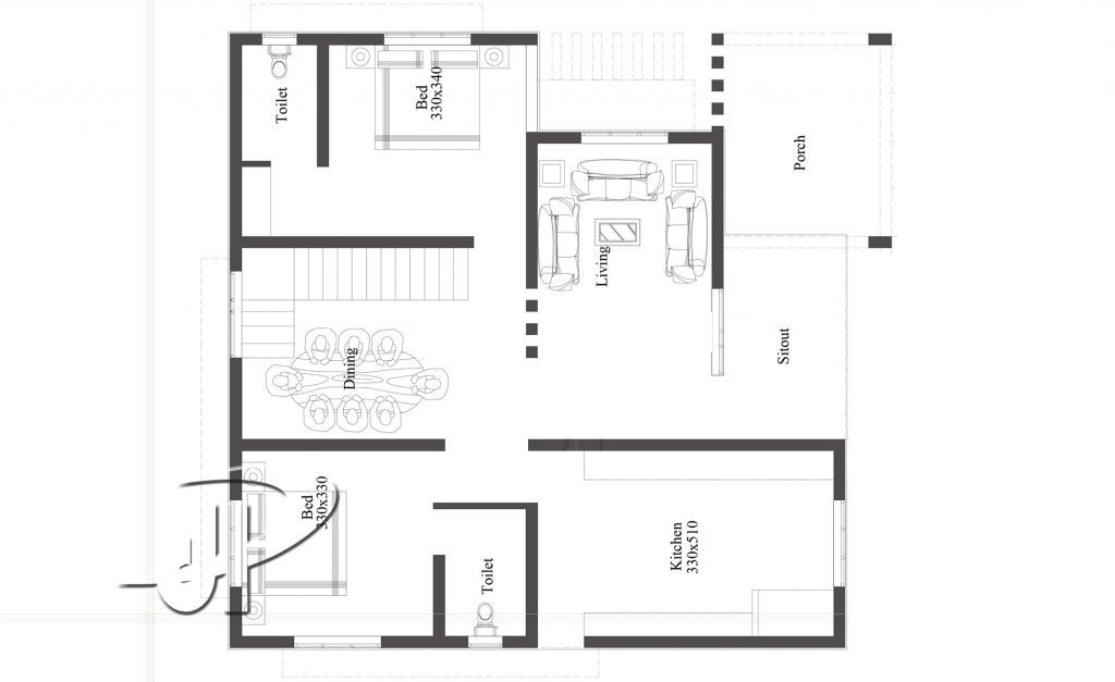
1032 Square Feet 2 Bedroom Low Budget Modern Single Floor Home Design and Plan
Total Area : 1032 Square Feet
Porch
Sit Out
Living
Dining
2 Bedroom
2 Attached Bathroom
Kitchen
contact the designer.
Perfect Design
Riyadh – K.S.A
Mail :perfecthomedesignz@gmail.com
If you wish to have breakfast in bed when you wake up, proceed to the next article. But most of us leave the bed in the morning. This is for a quick meal, coming to a comfortable and comfortable corner, making us feel good. All you need is a small area for 2-4 people, lavish and tasty dish. Voila! You leave the bed straight for this table. Forget the breakfast in bed, please go for the pleasure inside the booth. This corner makes the room vibrant, as graffiti-like walls are set behind the booth’s seat. The corner is used not to leave the way of busy cook. A marble desktop and upholstery are added to this kitchen. The best one is an additional storage space. A pretty rattan basket can be stacked and store the bench. How about using this space? For example, it’s a bit far away to play Scrabble. After all, we can never be too old or enjoy snacks quickly. Bright and bright room, looking into the sun from the window, fresh flowers, do not love this bright thing. Cushion and vivid color scheme. Blow air of fun into the corner. The chunk of log stood upright so that the stool fits in the idea worthy of stealing. There are several windows overlooking such a lawn in the kitchen and if you have extra space you can easily settle in with view. What you need is modern tables and chairs, floor lamps and some tasteful spaces. Drink coffee in the kitchen.

Courtesy : keralahomedesignz.com



